News

News
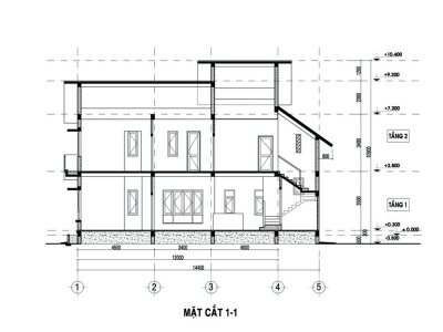
 CHIỀU CAO BẬC CẦU THANG
 CHIỀU CAO BẬC CẦU THANG
21/10/2024
Cầu thang là một bộ phận trong các công trình kiến trúc có tác dụng chia một khoảng cách lớn nằm xiên theo nhiều khoảng cách nhỏ nằm xiên (bậc thang). Cầu thang là phương tiện giao thông lên xuông giữa các mặt phằng nằm ngang có độ dốc cao khác nhau. “Bậc thang cao bao nhiêu?” “bậc cầu thang cao bao nhiêu là vừa” là những câu hỏi thường xuyên khi làm kĩ thuật chúng tôi nhận được thắc mắc từ phía khách hàng.
WHY SHOULD YOU BUILD A HOUSE FROM THE INSIDE OUT?
WHY SHOULD YOU BUILD A HOUSE FROM THE INSIDE OUT?
21/10/2024
As feng shui says, when building a house, one must first dig a solid foundation, then build the living room, then the other rooms, and finally the door and the auxiliary works, the fence, etc. If when building a house, it is unreasonable to proceed from the outside in, completing the exterior works first, and then doing the interior works. Because in the process of construction like that, it will cause the bad air to always linger inside the house, the air in the house will not be airy, affecting the daily life of the homeowner.
GUIDE TO KITCHEN DESIGN ACCORDING TO ARCHITECTURE AND FENG SHUI
GUIDE TO KITCHEN DESIGN ACCORDING TO ARCHITECTURE AND FENG SHUI
21/10/2024
The kitchen is not only a space for cooking but also a place for family gathering and bonding. Designing the kitchen reasonably and balancing architecture and feng shui will bring a comfortable, harmonious and convenient living space. Below are some important guidelines for you to design a satisfactory kitchen.
SỰ KHÁC BIỆT GIỮA BAN CÔNG VÀ LÔ GIA
SỰ KHÁC BIỆT GIỮA BAN CÔNG VÀ LÔ GIA
21/10/2024
Trong những công trình nhà cao tầng chúng ta thường thấy sự xuất hiện của ban công và lô gia và có nhiều người cho rằng đây là 2 cách gọi khác nhau nhưng đều là một. Vậy trên thực tế ban công và lô gia khác nhau như thế nào và có phải là một không?
NOTES WHEN DESIGNING DOOR SIZE
NOTES WHEN DESIGNING DOOR SIZE
21/10/2024
When building or renovating a house, designing the door size is an important factor that cannot be ignored. Doors not only play a role in connecting spaces, but also affect the aesthetics, comfort and security of the house. Below are some notes when designing door sizes.
TƯ VẤN CÁCH XÂY NHÀ TIẾT KIỆM CHI PHÍ XÂY DỰNG
TƯ VẤN CÁCH XÂY NHÀ TIẾT KIỆM CHI PHÍ XÂY DỰNG
19/10/2024
Xây nhà tiết kiệm chi phí là điều được rất nhiều bạn đọc quan tâm hiện nay. Làm sao để có thể bỏ ra một số tiền không quá lớn mà vẫn có thể sở hữu một căn nhà chất lượng tốt nhất. Tuyệt chiêu xây nhà tiết kiệm chi phí Những kinh nghiệm quý báu của chúng tôi dưới đây sẽ giúp bạn xây nhà ở, nhà trọ, nhà xưởng với chi phí tiết kiệm nhất.
HƯỚNG DẪN THIẾT KẾ BỐ TRÍ NHÀ VỆ SINH TRONG PHÒNG NGỦ
HƯỚNG DẪN THIẾT KẾ BỐ TRÍ NHÀ VỆ SINH TRONG PHÒNG NGỦ
19/10/2024
Nhà vệ sinh trong phòng ngủ không chỉ mang lại sự tiện nghi mà còn góp phần nâng cao trải nghiệm sống. Dưới đây là một số lưu ý và gợi ý để bạn thiết kế một không gian nhà vệ sinh hợp lý và thoải mái.
KHÁI NIỆM NỘI DUNG HỒ SƠ THIẾT KẾ CƠ SỞ
KHÁI NIỆM NỘI DUNG HỒ SƠ THIẾT KẾ CƠ SỞ
19/10/2024
1. Thiết kế cơ sở là gì? Hồ sơ thiết kế cơ sở là bản vẽ thiết kế được thực hiện trong thời gian, giai đoạn lập Dự án đầu tư xây dựng trên cơ sở phương án thiết kế đã được lựa chọn. Bản vẽ thiết kế cơ sở phải thể hiện được các thông số kỹ thuật phù hợp theo các tiêu chuẩn, quy chuẩn. Là căn cứ để triển khai các bước thiết kế tiếp theo.
PHÂN LOẠI VÀ YÊU CẦU KỸ THUẬT CHUNG ĐỐI VỚI TƯỜNG NHÀ
PHÂN LOẠI VÀ YÊU CẦU KỸ THUẬT CHUNG ĐỐI VỚI TƯỜNG NHÀ
19/10/2024
Yêu cầu kỹ thuật tường nhà một trong những bộ phận quan trọng nhất. Hiện nay tường nhà còn mang nhiều chức năng khác, vai trò khác với sự ra đời của nhiều loại vật liệu mới.
HƯỚNG DẪN ỐP GẠCH CHÂN TƯỜNG CHO PHÒNG KHÁCH
HƯỚNG DẪN ỐP GẠCH CHÂN TƯỜNG CHO PHÒNG KHÁCH
18/10/2024
Ốp gạch chân tường là một giải pháp thẩm mỹ và chức năng giúp nâng cao vẻ đẹp cho không gian sống, đặc biệt là phòng khách. Dưới đây là hướng dẫn chi tiết để bạn có thể thực hiện việc ốp gạch chân tường một cách hiệu quả và đảm bảo chất lượng.
NÊN ỐP GẠCH CHÂN TƯỜNG CHÌM HAY NỖI SO VỚI MẶT TƯỜNG
NÊN ỐP GẠCH CHÂN TƯỜNG CHÌM HAY NỖI SO VỚI MẶT TƯỜNG
18/10/2024
Khi thiết kế và trang trí nội thất, việc lựa chọn ốp gạch cho chân tường là một trong những yếu tố quan trọng, ảnh hưởng đến tính thẩm mỹ và chức năng của không gian. Hai phương pháp phổ biến nhất là ốp gạch chân tường chìm và ốp gạch chân tường nổi. Mỗi phương pháp có những ưu nhược điểm riêng, và việc lựa chọn giữa hai loại này phụ thuộc vào nhiều yếu tố. Dưới đây là phân tích chi tiết để giúp bạn đưa ra quyết định đúng đắn.
HƯỚNG DẪN CÁCH CHỐNG NÓNG CHO TẦNG ÁP MÁI
HƯỚNG DẪN CÁCH CHỐNG NÓNG CHO TẦNG ÁP MÁI
18/10/2024
Để nâng cao hiệu quả công năng cho các ngôi nhà và tạo nên không gian riêng đầy lãng mạn, các gia đình thường thiết kế thêm tầng áp mái và cải tạo thành phòng đọc, phòng làm việc hoặc thậm chí phòng ngủ. Tuy nhiên với khí hậu nóng ẩm của Việt Nam thì chống nóng cho tầng áp mái là điều vô cùng cần thiết. Hiện nay với sự phát triển của lĩnh vực kiến trúc – xây dựng cùng với sự ra đời của nhiều vật liệu mới, nhiều kiểu kiến trúc mới thì những cách chống nóng cho tầng áp mái không còn là điều khó khăn.

Partner

© 2022 HUNG NGHIEP PHU CONSTRUCTION INVESTMENT COMPANY LIMITED, All rights reserved. Web design by HD Agency