Construction 24h

Construction 24h
TIÊU CHUẨN ĐỘ LÚN CHO PHÉP CỦA CÔNG TRÌNH XÂY DỰNG
TIÊU CHUẨN ĐỘ LÚN CHO PHÉP CỦA CÔNG TRÌNH XÂY DỰNG
28/10/2024
Độ lún cho phép của công trình là một trong những chỉ số quan trọng trong xây dựng. Việc để công trình có độ lún vượt mức tiêu chuẩn sẽ gây nguy hiểm và ảnh hưởng đến cấu trúc của cả công trình. Vậy, độ lún cho phép của công trình là bao nhiêu? Nguyên nhân và biện pháp khắc phục khi bị lún nhà. Bài viết này sẽ làm rõ giúp bạn những vấn đề này.
CÔNG DỤNG, ỨNG DỤNG CỦA ĐÁ HỘC TRONG XÂY DỰNG
CÔNG DỤNG, ỨNG DỤNG CỦA ĐÁ HỘC TRONG XÂY DỰNG
28/10/2024
Đá hộc là dòng đá tự nhiên, được sử dụng trong nhiều công trình xây dựng. So với các loại đá nhân tạo khác thì đá hộc mang lại hiệu quả về mặt thẩm mỹ và sức chịu lực. Trong bài viết này sẽ giải đáp đá hộc là gì? Công dụng, ứng dụng thực tế của loại đá này.
CẤU TẠO SÀN BUBBLEDECK VÀ CÁC ƯU NHƯỢC ĐIỂM
CẤU TẠO SÀN BUBBLEDECK VÀ CÁC ƯU NHƯỢC ĐIỂM
26/10/2024
Là một công nghệ thi công sàn bê tông cốt thép mang tính cách mạng trong xây dựng, Sàn bóng – Bubbledeck được làm từ những quả bóng bằng nhựa tái chế để thay thế phần bê tông không tham gia chịu lực ở thớ giữa của bản sàn, làm giảm đáng kể trọng lượng bản thân kết cấu và tăng khả năng vượt nhịp lên khoảng 50%. Trong bài viết sau, sẽ giới thiệu kỹ hơn về cấu tạo sàn BubbleDeck và các ưu, nhược điểm của loại sàn này.
CẬP NHẬT TIẾT ĐỘ XÂY DỰNG NHÀ MÁY CÔNG TY TNHH CÔNG NGHỆ CHÍNH XÁC HAN SHENG
CẬP NHẬT TIẾT ĐỘ XÂY DỰNG NHÀ MÁY CÔNG TY TNHH CÔNG NGHỆ CHÍNH XÁC HAN SHENG
26/10/2024
Tiến độ xây dựng nhà máy công ty TNHH Công Nghệ Chính Xác Han Sheng đang diễn ra thuận lợi đúng với tiến độ mà Hưng Nghiệp Phú đã đề ra với chủ đầu tư.
CÁCH TÍNH KHỐI LƯỢNG VÁN KHUÔN DẦM
CÁCH TÍNH KHỐI LƯỢNG VÁN KHUÔN DẦM
26/10/2024
Việc tính khối lượng ván khuôn dầm là cực kỳ cần thiết trong quá trình xây dựng, nhằm đảm bảo chất lượng của công trình sau khi hoàn thành sẽ đúng với thiết kế cũng như đạt được độ bền cao nhất, đồng thời đảm bảo vấn đề nguồn vật liệu công trình được sử dụng đúng mức, tiết kiệm chi phí. Trong bài viết sau, sẽ hướng dẫn cách tính khối lượng ván khuôn dầm chi tiết nhất, cùng Hưng Nghiệp Phú theo dõi nhé!
CẤP ĐỘ BỀN BÊ TÔNG LÀ GÌ?
CẤP ĐỘ BỀN BÊ TÔNG LÀ GÌ?
26/10/2024
Cấp độ bền bê tông là một trong những yếu tố quan trọng cần quan tâm khi thực hiện việc xây dựng công trình. Vậy khái niệm cấp độ bền bê tông là gì? Mối quan hệ của cấp độ bền bê tông và mác bê tông như thế nào? Xin mời quý độc giả cùng tìm hiểu kỹ hơn nhé.
CẤU TẠO NÚT KHUNG NHÀ CAO TẦNG VÀ CÁCH TÍNH NÚT KHUNG NHÀ CAO TẦNG
CẤU TẠO NÚT KHUNG NHÀ CAO TẦNG VÀ CÁCH TÍNH NÚT KHUNG NHÀ CAO TẦNG
26/10/2024
Nút khung bê tông cốt thép là một trong những vị trí quan trọng trong các công trình xây dựng. Bởi vì đây là điểm sẽ chịu tải trọng khi có các tác động của điều kiện tự nhiên như gió bão, động đất,… Do đó, đội ngũ thi công công trình cần phải có sự hiểu biết kỹ lưỡng và sự tính toán chính xác để công trình được hoàn thiện hơn. Trong bài viết sau, sẽ giới thiệu chi tiết hơn về cấu tạo nút khung nhà cao tầng và cách tính hiệu quả.
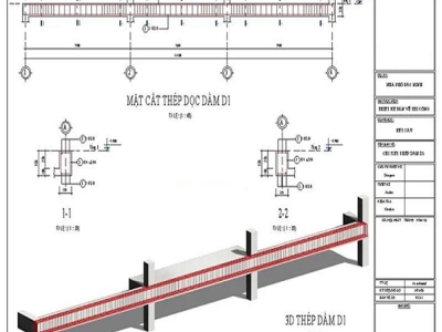
CONSON BEAM STEEL LAYOUT
CONSON BEAM STEEL LAYOUT
26/10/2024
Conson beam steel is a type of structure that can support and withstand great force in the construction of houses, schools, bridges, roads, etc. Although it appears so commonly, this name may be very strange if you are not an engineer or work related to construction. To have a more general view, today's article will introduce the concept and arrangement of conson beam steel.
HƯỚNG DẪN VỀ THỜI GIAN BẢO DƯỠNG BÊ TÔNG
HƯỚNG DẪN VỀ THỜI GIAN BẢO DƯỠNG BÊ TÔNG
26/10/2024
Bảo dưỡng bê tông đóng vai trò quan trọng đối với sự phát triển cường độ và mức độ ổn định của bê tông. Việc bảo dưỡng diễn ra ngay sau khi đổ bê tông và liên quan trực tiếp đến việc duy trì các điều kiện về nhiệt độ và độ ẩm mong muốn. Bê tông được bảo dưỡng phù hợp sẽ có đủ độ ẩm để phát triển cường độ, ổn định thể tích, khả năng chống rạn nứt bề mặt cũng như chống mài mòn và đóng cặn. Bài viết hôm nay hướng dẫn bạn đọc về thời gian bảo dưỡng bê tông phù hợp.
HƯỚNG DẪN BỐ TRÍ THÉP DẦM NHỊP 6M
HƯỚNG DẪN BỐ TRÍ THÉP DẦM NHỊP 6M
26/10/2024
Dù xây dựng tòa nhà cao chọc trời hay căn hộ dân cư thông thường, bố trí thép dầm là một trong những công đoạn quan trọng cần thực hiện. Kết cấu thép tốt, khoa học và đúng quy chuẩn không chỉ giúp quá trình thi công diễn ra tốt đẹp mà còn kéo dài thời hạn sử dụng của công trình. Để biết chi tiết về cách bố trí thép dầm nhịp 6m, hãy theo dõi bài viết dưới đây.
HƯỚNG DẪN CÁCH LẤY GÓC VUÔNG TRONG XÂY DỰNG
HƯỚNG DẪN CÁCH LẤY GÓC VUÔNG TRONG XÂY DỰNG
26/10/2024
Bạn có từng nghe thấy thuật ngữ “lấy góc vuông” hay “giác móng” trong xây nhà bao giờ chưa? Hai khái niệm này trên thực tế có cùng một ý nghĩa, đều chỉ một khâu vô cùng quan trọng trong xây dựng. Với dân trong ngành thì hẳn nó không còn xa lạ, tuy nhiên vẫn có khá nhiều người thắc mắc cách lấy góc vuông ra sao, giác móng nhà thế nào để đảm bảo yếu tố kỹ thuật? Mời bạn đọc cùng tìm hiểu những thông tin này trong bài viết dưới đây nhé!
PHONG THUỶ HÓA GIẢI NĂNG LƯỢNG XẤU TỪ XÀ NHÀ
PHONG THUỶ HÓA GIẢI NĂNG LƯỢNG XẤU TỪ XÀ NHÀ
24/10/2024
Theo thuyết “ phong thuỷ ” thì Xà nhà luôn là biểu tượng xấu vì nó tạo nên cảm giác ngột ngạt khi xuất hiện trên giường ngủ hoặc phòng khách. Vậy theo “phong thủy” thì phải làm như thế nào để hóa giải được điều đó?

Partner

© 2022 HUNG NGHIEP PHU CONSTRUCTION INVESTMENT COMPANY LIMITED, All rights reserved. Web design by HD Agency